The Torch (New York City)
The Torch 740 Eighth Avenue
| |
| Projektbild | |
| Basisdaten | |
|---|---|
| Ort: | New York City, Vereinigte Staaten |
| Bauzeit: | 2022–2027 |
| Status: | in Bau |
| Baustil: | Postmodern |
| Architekten: | ODA Architecture |
| Nutzung/Rechtliches | |
| Nutzung: | Hotel, Fahrgeschäft, Observatorium |
| Zimmer: | 825 (Hotel) |
| Bauherr: | Extell Development Co. |
| Technische Daten | |
| Höhe: | 313,6 m |
| Etagen: | 52 |
| Baustoff: | Stahl, Glas |
| Anschrift | |
| Anschrift: | 740 Eighth Avenue |
| Postleitzahl: | NY 10036 |
| Stadt: | New York City |
| Land: | Vereinigte Staaten |
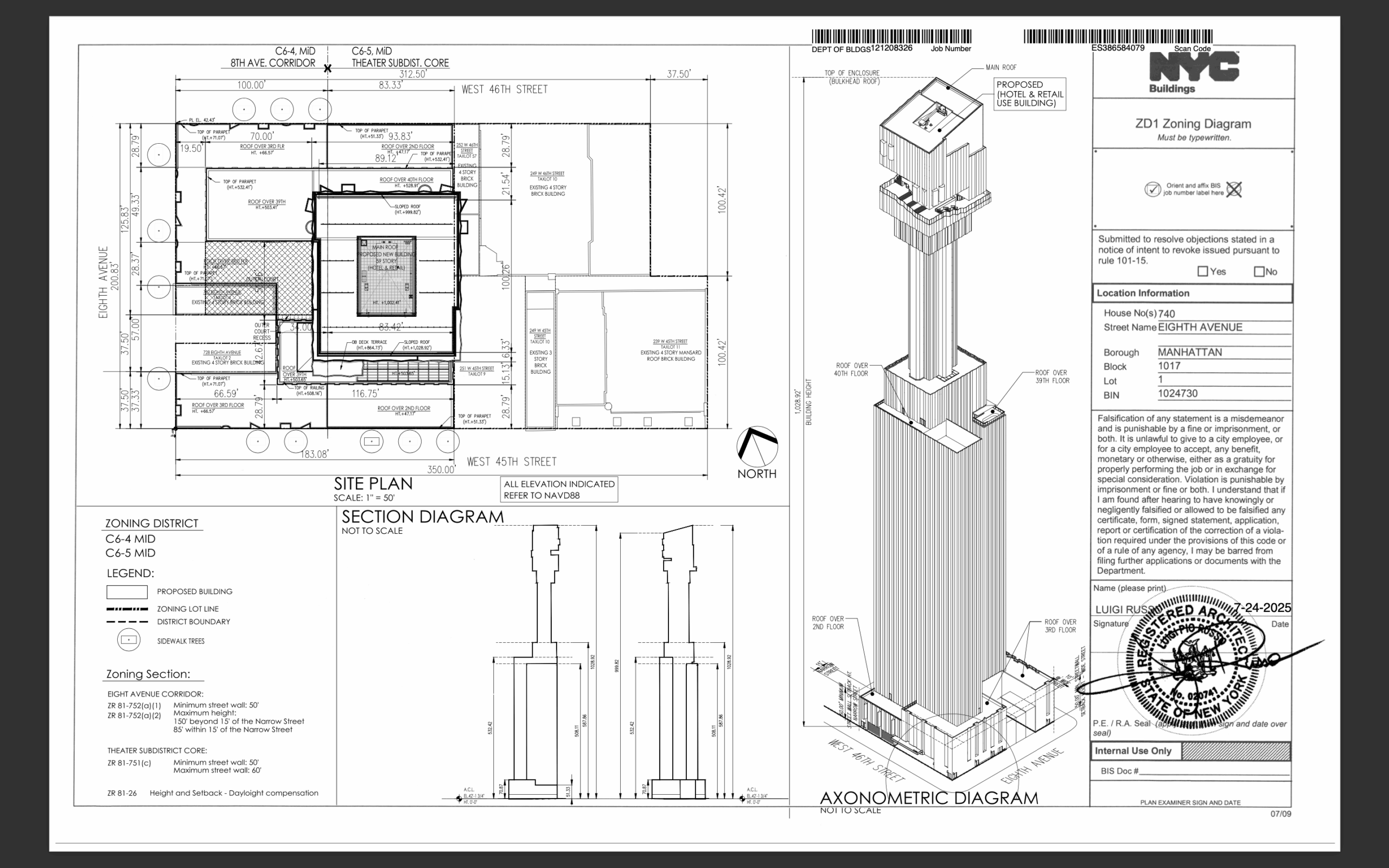
The Torch (dt.: Die Fackel), auch 740 Eighth Avenue, ist ein in Bau befindlicher Wolkenkratzer in Manhattan in New York City, Vereinigte Staaten. Das architektonisch außergewöhnliche Bauwerk wird nach seiner Fertigstellung ein Hotel, einen Freifallturm (Drop tower) und ein Observatorium in der Gebäudekrone beherbergen.
Lage
Das Gebäude befindet sich an der Eighth Avenue zwischen der West 45th und West 46th Street im Theater District an der Grenze zum Stadtteil Hell’s Kitchen in Midtown Manhattan.[1] Es nimmt das westliche Ende eines Stadtblocks ein, das am östlichen Ende mit dem Hotel New York Marriott Marquis an den Times Square und den Broadway grenzt.
Beschreibung
The Torch wurde vom Architekturbüro ODA Architecture im Auftrag der Extell Development Company entworfen. Der Turm wird 313,6 m (1029 Fuß)[2] hoch werden und 52 Stockwerke besitzen. Das gesamte Gebäude wird mit einer Glasfassade verkleidet. Der mehrstöckige Sockel umschließt drei an der Eighth Avenue stehende erhaltengebliebene Stadthäuser[1] und wird Einzelhandel und Freizeiteinrichtungen für das Hotel beherbergen, das die untere Hälfte des Turms mit 825 Zimmern einnimmt.[3] Der rund 150 m hohe obere Gebäudeteil besteht aus einem hohen Schaft, der in eine zur Spitze hin immer breiter werdenden Krone übergeht. Im Schaft befinden sich die gläsernen Röhren des Indoor-Freifallturms mit 80 m Fallhöhe und in der Krone ein Restaurant sowie Aussichtsplattformen beziehungsweise Observatorien.[4]
Geschichte
Die Bauarbeiten begannen Ende 2022 mit dem Bodenaushub. Trotz massiver Proteste von Anliegern und Mitgliedern des Manhattan Community Boards 5, die sich insbesondere gegen das architektonische Erscheinungsbild des Bauwerks und den Indoor-Freizeitpark „Free Drop“ richteten, genehmigte das städtische Bauamt im Juni 2023 das Bauprojekt.[4] Bis März 2024 wurden die Bodenplatte und die Umfassungswände der Kellergeschosse fertiggestellt. Nach einjähriger Unterbrechung wurden die Arbeiten im späten Frühjahr 2025 fortgeführt und der Rohbau erreichte im August 2025 die Höhe der drei Stadthäuser und überragte diese Ende 2025 bereits mit mehr als zehn Stockwerken. Im Laufe des Jahres 2025 fand eine Designänderung statt, die die Umwandlung der spiralförmigen Geometrie des Stiels zu einer einfachen Säule sowie die Reduzierung der Höhe von 325 Meter (1067 Fuß) auf aktuell 313,6 Meter (1029 Fuß) umfasst.[5] Die Fertigstellung von The Torch wird voraussichtlich 2028 erfolgen.[6]
Siehe auch
Weblinks
- New York Yimby Berichte und Bilder über The Torch at 740 8th Avenue.
- Skyscraper Center Informationen beim Council on Vertical Urbanism (CVU)
- Sarah Beling von W42ST Plans Approved for Skyline Midtown Amusement Ride As Groups Protest Supertall.
- The Real Deal Extell: 740 Eighth Ave project with thrill ride is legal, erschienen am 27. Juni 2023.
Einzelnachweise
- ↑ a b NYC Planning ZoLa – 740 8 Avenue, 10036.
- ↑ The Torch Continues to Rise at 740 Eight Avenue in Times Square – 740 Eight Avenue, Zonendiagramm 24. Juli 2025. In: New York City Buildings/New York Yimby. Abgerufen am 25. Dezember 2025.
- ↑ Michael Young und Matt Pruznick, New York Yimy Renderings Revealed for The Torch at 740 Eighth Avenue in Midtown, Manhattan, erschienen am 15. März 2024.
- ↑ a b Sarah Beling, W42ST Plans Approved for Skyline Midtown Amusement Ride As Groups Protest Supertall, erschienen am 28. Juni 2023.
- ↑ Michael Young und Matt Pruznick: The Torch Continues to Rise at 740 Eight Avenue in Times Square. In: New York Yimby. 25. Dezember 2025, abgerufen am 25. Dezember 2025.
- ↑ Michael Young, Matt Pruznick: The Torch Begins Its Ascent at 740 Eighth Avenue in Times Square, Manhattan. In: New York Yimby. 18. August 2025, abgerufen am 19. August 2025.
Koordinaten: 40° 45′ 33,7″ N, 73° 59′ 15,6″ W